mathys citerne

Rénovation Relecq Kerhuon

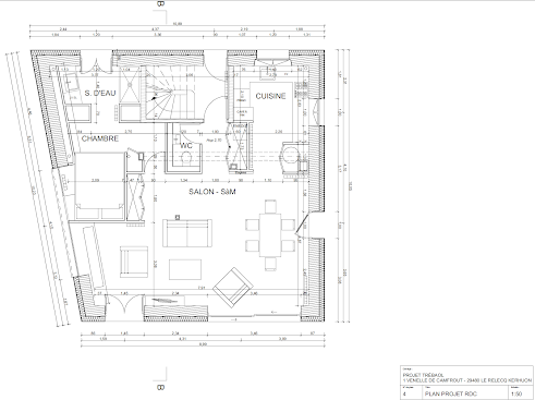
Projet perso : Relecq Kerhuon, Bretagne (2022)
Cliente : Catherine Trébaol





 

Article plus récent Article plus ancien Accueil

À propos

  • CV
  • Contact

Réseaux

  • Instagram
  • Linkedin

Architecture

  • Architecture Bioclimatique
  • Bunker Philharmonie
  • Concours Eiffel
  • FabLab Quai de Seine
  • Logements Marx Dormoy
  • Maison Sénégal
  • Médiathèque Valencia
  • Pavillon déployable
  • Paysagisme Alboraya
  • Rénovation Relecq Kerhuon
  • Skatepark Bagnolet
  • Urbanisme Inde

Art

  • Peinture
  • Sculpture
  • Street-art

Design

  • Affiches
  • Design d'intérieur
  • Design d'objet
  • Logos
  • Vêtements

Photographie

  • Couleur
  • Noir et blanc

Contact

Nom

E-mail *

Message *

Fourni par Blogger.